Rénovation | Agencement | Mise aux normes 

Votre Architecte d'Intérieurs autour de
Saverne | Strasbourg | Haguenau

Conception | Consultation des Entreprises | Suivi de chantier

Résidentiel | Boutiques | Bar & Restaurant | Locaux professionnels

Quel est le coût d'une mission d’Architecture Intérieure ?

Mes Tarifs sont transparents  

Clarté et simplicité: Un prix au m² pour la conception, un pourcentage du montant des travaux pour le Suivi de chantier.

Après la phase de conception et votre dossier en main, vous pouvez choisir de ne pas faire appel à moi pour le Suivi de chantier et gérer vous-même votre projet.

Quels sont les Livrables d'une mission d'Architecture Intérieure ?

A chaque étape des pièces graphiques et documentaires

Depuis les croquis aux vues 3D réalistes, en passant par les plans, les coupes et élévations ainsi que les schémas techniques (électricité, éclairage et plomberie).
Mais également des estimatifs budgétaires, des listing matériaux et références ou des comptes-rendus de suivi de chantier. Tout pour se comprendre et communiquer

Serendipity Lady vous accompagne à chaque étape 
 

Je suis votre alliée si:

Vous rénovez et vous cherchez des solutions pour optimiser l'espace, le redistribuer.
Vous ne savez pas comment rendre votre boutique ou votre bar conforme aux réglementations d'accessibilité (PMR) et sécurité incendie.

Vous envisagez de casser des murs, monter des cloisons, ouvrir une trémie, viabiliser des combles ou créer une salle bain.

Vous rêvez d'un design singulier et mémorable avec une vraie image de marque.
Vous êtes curieux  et ouverts aux matériaux innovants et bio sourcés.

Comment se déroule un projet d’Architecture Intérieure ?

C’est une organisation précise, faite de phases distinctes: Depuis le recueil des besoins jusqu'à la livraison finale du chantier.


Leur point commun: maintenir un dialogue permanent entre vous & moi.

01.

Phase de Rencontre

Rencontre à plusieurs égards: vous et le lieu que vous souhaitez rénover ou réagencer. 

Une fois défini le périmètre de ma mission je recueille toutes les informations nécessaires. Le triptyque envies / besoins / contraintes, mais également votre univers. A l'issue de nos échanges, nous clarifions ensemble vos priorités.

Puis je procède au relevé des cotations et en fait une analyse. Un état des lieux à 360° !

Une Demande Préalable de Travaux  ou un Permis de Construire est nécéssaire ? Confiez-les à Serendipity Lady ! En collaboration avec un Architecte partenaire si nécéssaire.

02.

Phase de Conception

Phase longue et essentielle. 

-

J'esquisse plusieurs solutions d’implantation à l’échelle. 

Lors d’un entretien de restitution je vous présente les lignes directrices générales (répartition des espaces, circulations, fonctionnalités) et les partis pris esthétiques (lumière, ambiance, couleurs, matériaux et textures). 

Sur cette base nous affinons le projet et les arbitrages nécessaires en fonction des priorités & budget.

Cette étape est  appelée “APS” (Avant Projet Sommaire). Il est important d’y consacrer le temps nécessaire afin de rendre votre projet réaliste, cohérent et chiffrable  !

-

Lorsque tout est validé, je modélise le projet. Quelques vues 3D immersives vous permettront de parfaitement le visualiser en textures et en volume, pour vous projeter dans ce futur lieu !

-

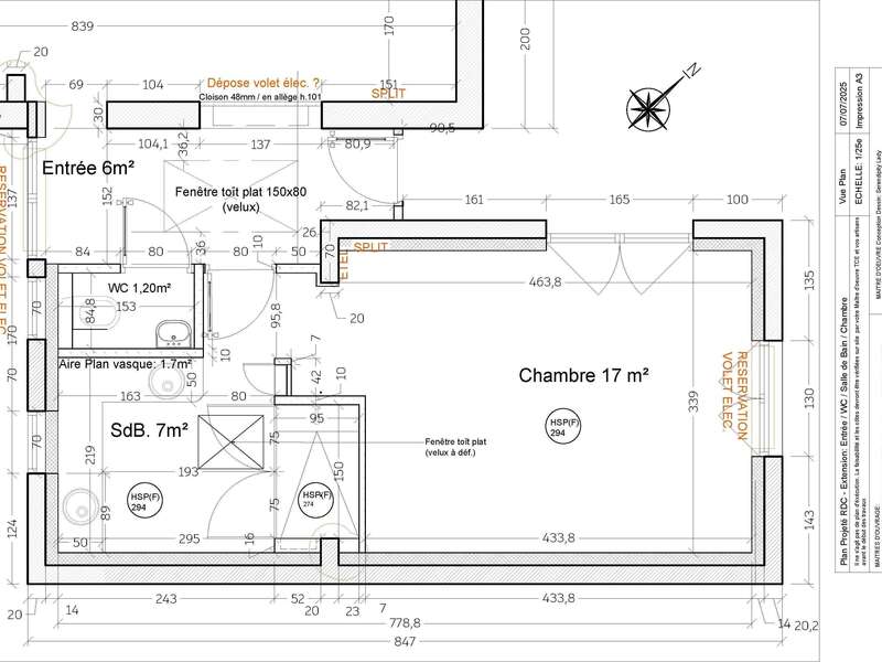
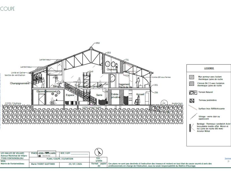
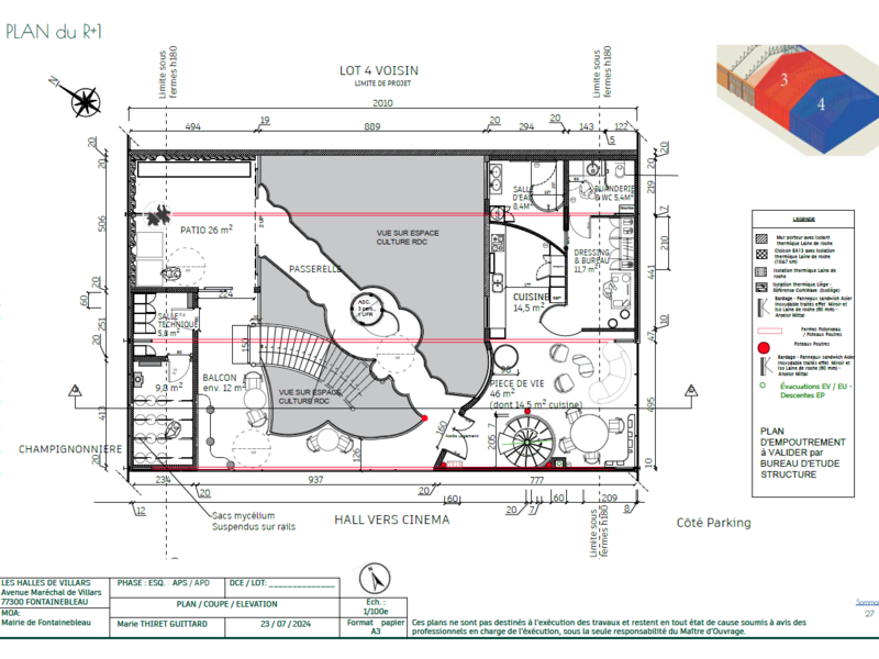
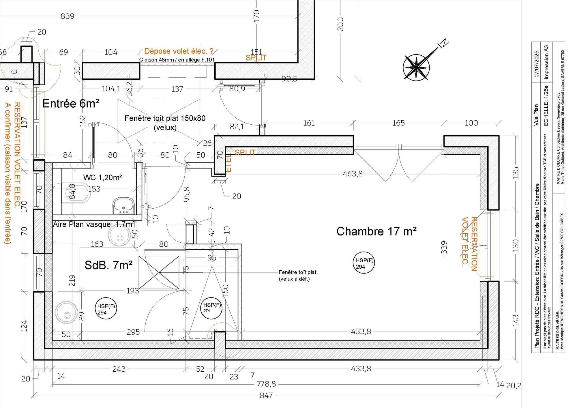
Enfin, je trace les plans/coupes/élévations côtés et détaillés/schémas techniques (électricité, éclairage, plomberie) et les éventuels mobiliers sur mesure. Pas de place pour l’à-peu-près ! 

Cette étape est  appelée “APD” (Avant Projet Détaillé). Elle se conclue avec la préparation d’un estimatif budgétaire pour la réalisation de l’ensemble du projet.

03.

Phase de Chantier

Je rédige le dossier technique qui permettra aux entreprises & artisans de comprendre et chiffrer précisément le projet.

Je sollicite des professionnels (expertise, sérieux, Responsabilité civile professionnelle et décennale), et décortique leurs  devis - vous sélectionnez ceux qui feront le projet .

Lorsque démarrent les travaux, vous pouvez vous reposer sur moi: suivi du planning et coordination des différents corps de métier. En contrôlant régulièrement le chantier je m’assure que l'exécution est fidèle au programme et répond aux normes en vigueur.

En interlocuteur unique, je vous garde informés grâce à des comptes-rendus réguliers, je gère les imprévus afin que vous viviez  une expérience moins anxiogène.

Même si, soyons réalistes… un chantier de rénovation est rarement un long fleuve tranquille !

Création et référencement du site par Simplébo Simplébo

Connexion